Retour

Châlonvillars (70400)
CHALONVILLARS - Plateau à rénover (Réf : VH2109)

  • à propos de ce
    bien

    CHALONVILLARS - Plateau à rénover (Réf : VH2109)

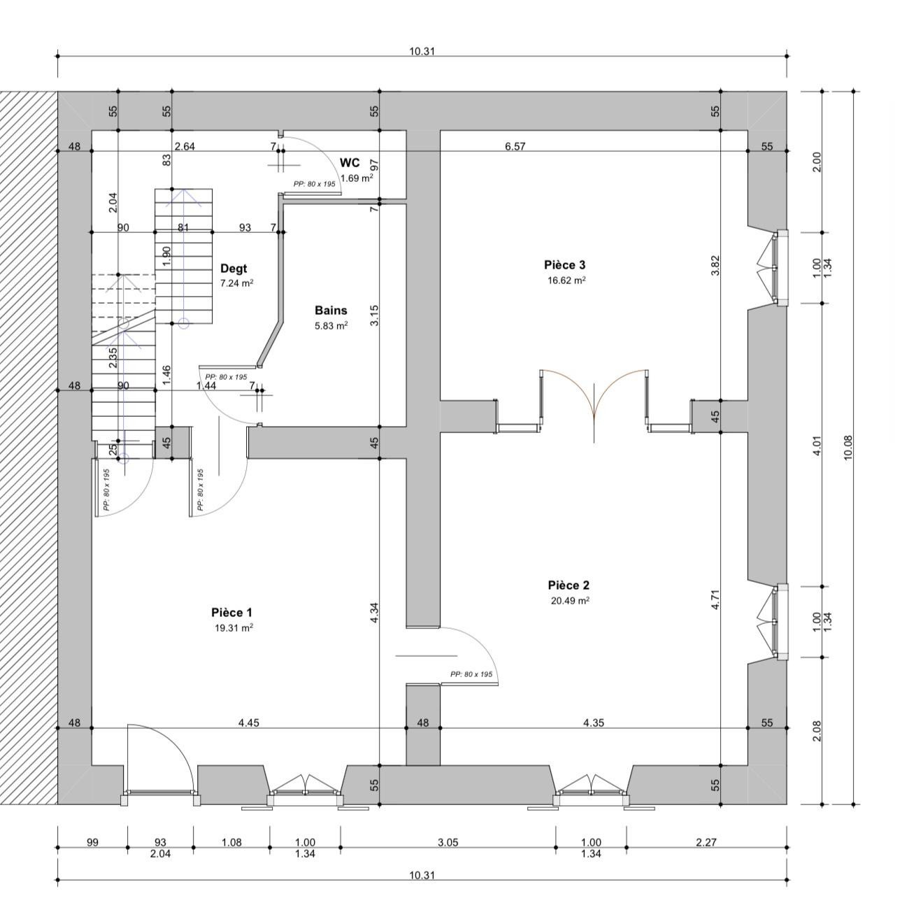
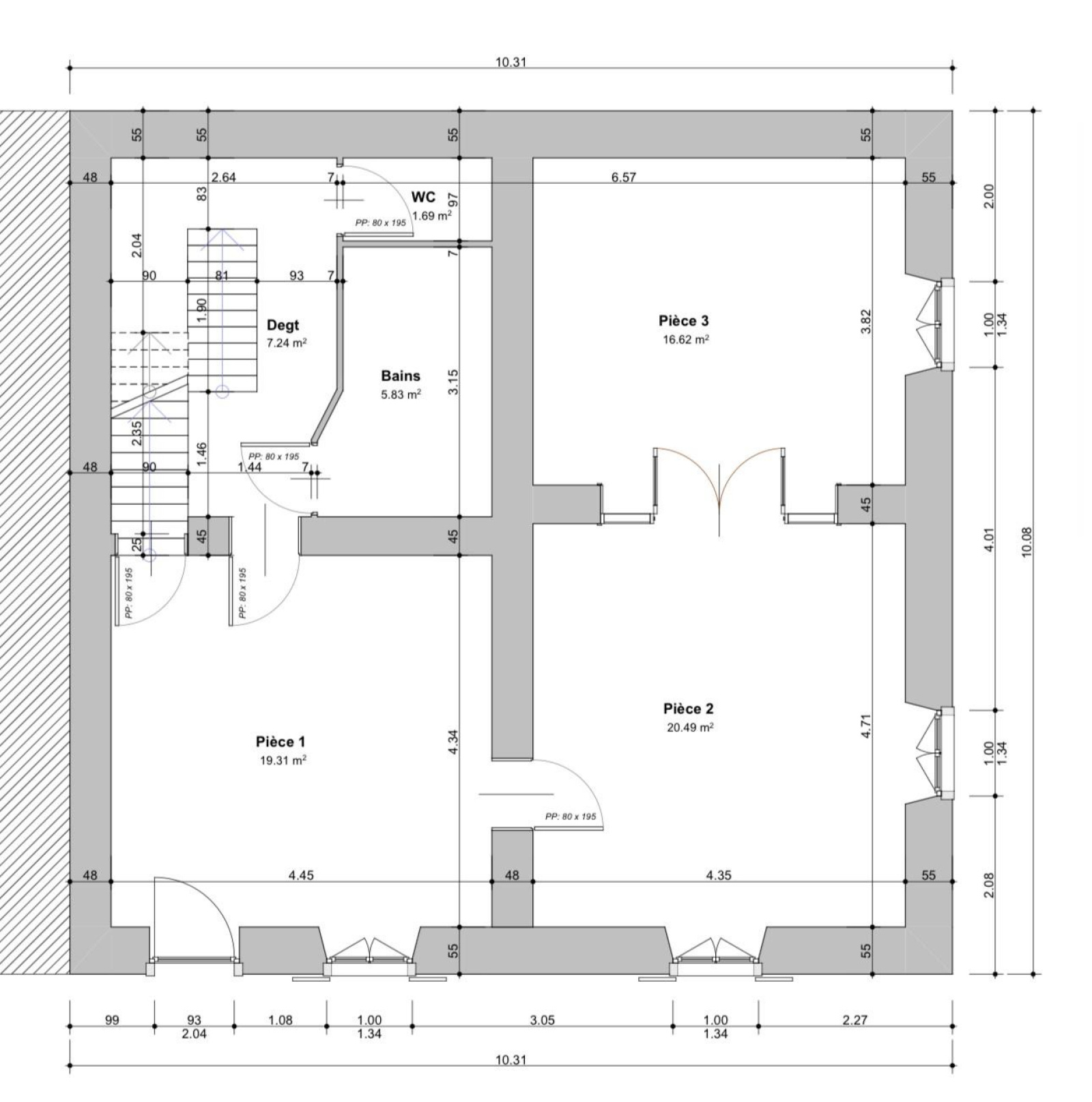
    Au centre du village de Châlonvillars, proche des commerces, école et transports en commun, dans un immeuble de 2 appartements,

    PLATEAU sur 2 niveaux d'environ 130 m² à rénover entièrement, avec jardin et place de stationnement.

    • Prix
      49 000 €
    • Code postal
      70400
    • Surface habitable (m²)
      130 m²
    • Nombre de chambre(s)
      2
    • Nombre de pièces
      4
    • Références
      VH2109
  • Plus d'informations
    financières

    • Prix de vente honoraires TTC inclus
      49 000 €
    • Prix de vente honoraires TTC exclus
      45 000 €
    • Honoraires TTC à la charge acquéreur
      8,89 %
  • la
    copropriété

    • Copropriété
      NON
  • Plus d'informations sur
    le quartier

    • Commerces et santé
    • Loisirs
    • Ecoles
    • Transports
    • Pratique
  • Bilan
    énergétique

    DPE GES
    DPE vierge

Ce bien
m'intéresse

Nos outils